我が家のある街は夏には40℃を超える日もあり、万一停電になってしまうと、犬たちが熱中症になってしまうリスクがあります。また、最近は異常気象(既に異常が通常になっている気がしますが…)による災害も増えてきていると思うこともあり、ソーラーカーポートと蓄電池を導入することにしました。
太陽光発電だと、屋根に取りつけるのが一般的だと思いますが、我が家はガルバリウム鋼板貼りの屋根でパネルを載せられないのと、前からカーポートが欲しかったこともあって、ソーラーカーポートを導入することにしました。
ソーラーカーポート、いろいろな業者がありますが、比較検討した結果トモシエのType Wと13.3KWhの蓄電池を導入しました。
業者選定や設置の際のポイント、節電効果などについてレビューしてみたいと思います。
ソーラーカーポートとは
カーポートの屋根にソーラーパネルを載せたものが、ソーラーカーポートです。
今までのソーラーカーポートは、通常のカーポートを設置し、その上に片面パネルを固定するという方法でした。

※トモシエのサイトから引用
このタイプのソーラーカーポート、どうも見た目がダサいので導入に躊躇しておりました。
どうしてもパネルを通常のカーポートの上に載せるため、カーポートがかなりごっつくなる上に、その上にソーラーパネルが載るので、かなり分厚く、スマートじゃ無いんですよね…。

※トモシエのサイトから引用
最近、両面パネルが登場したことで、かなり見た目もスマートなカーポートが増えてきました。
両面パネルをそのままカーポートの屋根として使うことで、ソーラーパネルとカーポートが一体化して、見た目もかなりスリムでカッコいいのです。
今回は最新の両面パネルを採用したソーラーカーポートを導入してみました。
両面発電パネルのメリット
最近登場した両面発電パネルは、パネルの表裏両面から光を吸収して発電する構造を持ち、通常の片面パネルと比べてさまざまなメリットがあります。
発電パフォーマンスの違い
両面発電パネルの最大の違いは、パネルの裏側でも「地面から反射した光」を拾える点です。
両面パネルは地面からの反射光や、空気中で散乱している光を裏面でもキャッチします。カーポートは下が空間になっているため反射光を取り込みやすく、片面パネルに比べて約5%〜20%の発電量アップが期待できます。
片面パネルは表面でしか発電できないため、設置環境による「上振れ」は期待できません。
構造とデザイン
見た目の美しさと、設計の自由度が大きく異なります。
両面パネル(屋根一体型)
メリット: パネルそのものが「屋根材」を兼ねています。余計な架台がないため、構造が非常に薄く、スタイリッシュで高級感のある外観になります。
デメリット: 「パネルの大きさ」が屋根のサイズを決めるため、パネル単位でしか幅を調整出来ません。駐車場に合わせて細かくサイズを調整するのが苦手です。
片面パネル(後載せ型)
メリット: 一般的なカーポートの上に載せるため、カーポート自体の選択肢が非常に豊富です。駐車場の形状や予算、好みに合わせて「土台」を選べる柔軟性があります。
デメリット: 「屋根+架台+パネル」の3層構造になるため、どうしても屋根が分厚くなり、見た目が重たく「後付け感」が出てしまいます。
カーポート内の「明るさ」
カーポート下の居心地・使いやすさを左右するポイントです。
両面パネル(屋根一体型)は多くの製品が透過性のあるガラス構造を採用しているため、光がほどよく透けて木陰くらいの日陰になりますので、カーポート下が真っ暗にはなりません。
片面パネル(後載せ型)ではソーラーパネルをカーポートの屋根材の上に載せるため、屋根材は強度のある鋼材を使用します。ポリカーボーネートなどの透ける屋根材を使用したカーポートとは異なり、光を完全に遮るため、日中でもカーポート下が暗くなりがちです。
悪天候への強さと耐久性
両面パネルは雪に強いという特徴があります。裏面が発電することでわずかに熱を持ち、表面の雪が溶けるのを早める効果があります。特に、雪は日光の反射が強いため、積雪時は裏面からの発電が増えることも雪を溶かす速度に繋がります。
両面パネルは「ダブルガラス構造(表裏が強化ガラス)」のものが多く、湿気による劣化に強いため、片面パネルよりも出力保証が長く設定されている(例:30年保証など)ケースが目立ちます。
トモシエのソーラーカーポートを採用した理由
今回、ソーラーカーポート導入にあたり、3社に見積を依頼しました。
- トモシエ(GCストーリー株式会社)
- ミライ株式会社
- 株式会社キャッツ
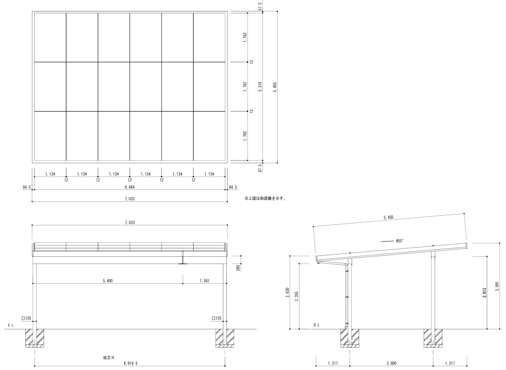
我が家の駐車場は、幅7m×奥行き6mというサイズで、台数でいうと2.5台サイズとなります。軽自動車なら3台駐車可能なサイズです。
駐車場の幅をできるだけ広くとれるということを最優先の条件として選定しました。
結論から言うと、幅7mぴったりのソーラーカーポートを提案できたのはトモシエの1社のみで、残りの2社は中途半端な位置に柱が設置される提案でしたので、却下となりました。
駐車場は7mの幅があるのに、壁から1m離れた場所に柱が立つのってどうなのよ…
トモシエの提案ではパネルを6×3枚設置するとちょうど7mとなりました。
本来、柱は2台分サイズの場所に設置されるようなのですが、柱の位置を一番端にすることで、間口7m弱を確保することが可能となりました。

カーポートの高さは、標準、セミハイルーフ、ハイルーフ、超ハイルーフの4種類が選べます。
アルファードクラスのミニバンでも、標準タイプ(2355mm)に収まりますので、標準タイプを選ばれる方も多いようです。
我が家では、高さ2mの車を洗車する際に脚立に乗って作業しますので、2355mmよりも一回り高い、2500mmのセミハイルーフ仕様としました。
※上の図面は標準タイプです
組み合わせる蓄電池について
ソーラーカーポートと組み合わせる蓄電池ですが、ソーラーカーポートの出力が8KWとそこそこ大きいこともあり、10KWh以上の容量を持つ製品を検討することにしました。
ソーラーパネルと蓄電池は別々に導入することも可能ですが、最初から蓄電池の導入も行うのであれば、ハイブリッド型のパワーコンディショナーを利用できますので、電力変換ロスもなく、構造もシンプルになります。
後から蓄電池を導入する場合、ソーラーパネル用のパワーコンディショナーと、蓄電池用のパワーコンディショナーを別々に導入、接続する必要があるため、機器が増えるのと変換ロスが発生します。
蓄電池の価格は容量により変わりますが、コントローラーなどの部分は容量が変わっても共通ですので、10KWhと13KWhではそれほどの金額差がありません。容量は余裕のある、13.3KWhにすることに決めました。

購入したのは、カナディアンソーラーのEP CUBEという蓄電池です。スリムで今どきの外見で格好いいですね。
6.6KWh、9.9KWh、13.3KWhのシステムがラインナップされており、蓄電池も今どきのリン酸鉄系リチウムイオン蓄電池を使っています。

取りつけたEP CUBE。下の4段がバッテリーになっており、1ユニットあたり3.3KWhの容量となります。6.6KWhのシステムではバッテリーが2ユニット、13.3KWhでは4ユニットのバッテリーを使用します。
給湯器と比べるとかなりスリムなの分かると思います。
全負荷・特定負荷
容量が大きい蓄電池を導入しましたので、家中の全てのコンセントを蓄電池でバックアップする方式である「全負荷」方式を採用しています。全負荷で便利なのは、200Vのエアコンを含め、全ての機器が蓄電池で動作するという点です。
ただし、当たり前ですがエアコンなどは蓄電池の電力消費も激しいので、停電時は最低限必要な台数以外はOFFにすることをおすすめします。
全負荷とは異なり、特定の回路だけを保護する特定負荷という方式もあります。特定負荷の場合、多くは配電盤にあるブレーカーのどれか1つにのみ電力を供給するような使い方となります。例えば、キッチンを特定負荷のバックアップにすることで、停電時でも冷蔵庫は使える、といった感じです。
全負荷と比べるとコストが安く、また、蓄電池の容量も少なくて済みますが、便利さでは全負荷には到底かないません。
気になる発電量
今は冬なので日照時間が短く、また、隣の家の日陰になってしまう時間帯もあるので発電量は控えめですが、それで30~60%程度の電気消費量をソーラーパネルの発電でまかなえている状態です。
蓄電池ですが、冬でも晴れた日であれば100%まで充電されますので、容量が多すぎるということもありませんでした。

EP CUBEアプリを入れると、ソーラーパネルの発電量や電力網からの電源供給/売電量のほか、家での電気消費量などをモニタリングすることが可能です。
EP CUBEの動作モードは4種類ありますが、普段はエコモードで問題無いと思います。
蓄電池を導入するメリットの一つが、災害時などの非常事態での電力喪失に対する備えですが、エコモードでは蓄電池に溜まった電力を最大限使って電気代を節約しますので、時間帯によっては蓄電池の容量は空っぽ、ということもあります。
災害時にはあらかじめ蓄電池を100%にしておきたいところですが、動作モードをEP CUBEアプリから手動で切り替えるのは面倒だなぁ…と思っていたら、CP CUBE側が気象庁などの警報をトリガーにして、自動的に蓄電モードに切り替える仕組みがありますので、これを使うと良いと思います。
便利な蓄電池ですが、1点だけ注意点があります。停電時には自動的に蓄電池に切り替わりますが、その際に5~10秒程度の停電が発生します。これは系統と切り離さずに電気を流すと感電等の恐れがあるため系統側の確実な遮断が必要な為です。
無瞬断切替可能なパワーコンディショナー・蓄電池は少ないので、UPS代わりに使おうと思っている方は要注意です。
両面パネルのソーラーカーポートを導入してよかった点
トモシエのType Wソーラーカーポートと蓄電池を導入してから2週間くらい経ちますが、感想としては導入して大正解でした。
良かった点を簡単にまとめたいと思います。
停電時でも電気が使える
先日、昼から夜まで停電があったのですが、自宅で作業をしていたら停電に気づかず、外に出てみたら辺り一面真っ暗で驚きました。
蓄電池からの供給で我が家は全ての電気が使えていたのですが、近所一帯は停電で街灯すら付かない真っ暗な状態でした。
蓄電池を導入しておいてよかった…とつくづく感じました。蓄電池、偉大です。
カーポートとしても見た目がスリムでカッコいい

色はブラックを選択しましたが、格好いいですね。
一体型パネルなので屋根も薄く、見た目がスッキリしています。
フレームもかなりしっかりしており、風や地震などでもしっかり耐えてくれそうです。
気になっていた間口も、柱をブロック塀ギリギリに寄せて施工してくれたので、今までと変わらない感覚で車を停めることが出来ます。
駐車場の間口が7mなのに柱の間隔が6mとか意味分からないですからね…
カーポートの下も適度な光が差し込むのでとても便利
洗車をしていて便利だと思ったのが、太陽光パネルの隙間から適度に日が差し込むため、カーポートの下が真っ暗にならないということ。

両面パネルですが、下から見るとこんな感じでセルの間にはわずかな隙間が設けられています。
この部分から光が漏れるので、カーポートの下が真っ暗にならず、適度に良い明るさが保たれます。

洗車をしている様子。こんな感じの日陰になりますので、とても作業がしやすいです。
泡洗車をしている際に困るのが、直射日光が当たることで車のボディが熱くなり、水分が蒸発して泡がこびりついた状態になってしまうことです。
しかし、これくらいの日陰になっているとボディも熱を持ちませんので、ゆっくり洗車をすることが出来ます。
めちゃくちゃ洗車しやすくなって大満足です。
もちろん、カーポートが付いたことで露天駐車よりも雨や埃が付きづらいので、洗車する頻度も少なくて済みます。
カーポート単体として見ても、大満足です。
施工費用と投資回収期間について
気になる施工費用ですが、ざっくり税込480万円となります。
なお、見積した3社の中では真ん中の金額で、他の2社は450万、680万(!)でした。
ソーラーカーポート本体:約90万円
太陽光パネル:約100万円
パワコン・蓄電池:約200万円
工事費:約90万円
我が家の電気代は、冬は2万円程度~夏は3万5千円程度となります。犬がいる部屋は24/365でエアコンがONになっているうえ、私が在宅ワークでサーバーを含めると常時3~4台くらいのPCが稼動していることもあり、電気代はそこそこ高めです。
冬の電気代が少ないのは、ガスストーブをメインにしているためで、ソーラーカーポート導入後はエアコンをメインに切り替えますので、もう少し上がるかな?といった感じです。
よく、電気代0円!といった宣伝をしているソーラーパネル事業者がいますが、これはローン返済額とソーラーパネル導入により削減された電気代がプラスマイナスゼロになることを言っています。
わかりやすく言えば、それだけ長い期間のローンを組む必要があり、金利負担も相応に大きいのが欠点です。
ローンによる支払いシミュレーション
我が家の条件で試算してみたいと思います。
ソーラーパネル導入による電気代削減額ですが、夏は多く冬は少ないのですが、計算を単純にするために平均25,000円/月と仮定します。
計算の条件は以下となります。
借入金:4,800,000円
金利:2.5%(ノンバンク系では低め、銀行系だと高めの中間値を採用)
毎月返済額:25,000円(電気代とプラスマイナスゼロになる計算)
返済方式:元利均等方式
上記の条件ですと、完済までに20年6ヶ月となります。支払総額は614万円、支払利息は133.6万円とかなり利息が高くなってしまいます。
月々の生活費は変わらないものの、130万円以上の利息はかなりインパクト大です。
今回は、私の給与振込口座のある銀行で、リフォームローンを組みました。
金利は2.1%とそこまで安くはなく、他銀行であれば1.8%程度の金利のローンもあります。
ただし、他銀行だとローン返済のために資金を移動する必要があるので、0.2~0.3%程度の金利が安くても手間がかかるため、メリットがないと判断しました。
ローンを組まずに現金一括で支払うという方法もありますが、直近の経済状況では運用した方が遙かに高いリターン(年10%前後)を得られます。
手元資金を一括で支払って減らすよりも、その金額を運用し、ローン金利との差額を利益とした方が得なのでローンを利用することとしました。
今回利用したローンの支払い条件は下記となります。
借入金:4,800,000円
金利:2.1%
返済期間:60ヶ月
返済方式:元利均等方式
返済期間を5年と短く設定し、早めに債務を完済して利息を抑える方法としました。
この条件ですと、毎月の支払額は84,343円となります。電気代削減額よりも遙かに高い金額となりますが、メリットは利息が約26万円で済むため、先ほどの条件と比べると100万円以上利息が少ない計算になります。
手持ち資金に余裕がある場合は、返済期間を短くするのはかなり有効です。
ソーラーカーポート&蓄電池を導入した結論
当たり前ですが、カーポートが出来たことで車が汚れにくい、霜で窓ガラスが凍らない、といったメリットがあります。
といっても、これは通常のカーポートでも同じですね。
ソーラーカーポートのメリットとしては、やはり駐車場を発電所として使えるという点です。屋根にソーラーパネルを載せられない場合などは有力な選択肢となると思います。
両面パネルを使うことで見た目もよく、発電効率も高いので電気代削減にも繋がります。
蓄電池は単体で見ると導入するに見合うコスト削減は難しいですが、停電時でも電気を使えるという安心感はとても大きいです。また、発電量が多ければ夜間も電力を自家消費するので電気代がかかりません。
全負荷であれば停電時も普段と変わらずに全てのコンセント・照明が利用可能なのでまったく不便がありません。
最大のネックは導入コストですが、金利負担が大きくても問題無ければ、20年くらいのローンを組めば毎月の支払額は変わらずに、蓄電池による安心感を得ることが出来ます。
支払額は増えますが、5年程度のローンにしてしまえば、ローン完済後は電気料金も激減し、毎月のキャッシュフローが大幅に改善します。
昔のような補助金はなくなっている自治体が多いと思いますが、昔と比べると蓄電池は圧倒的に安くなり、10年前では5~7KWh程度の蓄電池が300~400万円くらいしたものが、今では13.3KWhで200万円と、劇的に安くなっていますので、補助金が無くても十分導入を検討するに値するコストパフォーマンスとなっています。
個人的には、導入してかなり満足度が高い設備かと思います。

コメント